467F Einsteck-Fallenschloss mit Fluchttürfunktion
Slider überspringen Einsteck-Fallenschloss mit Fluchttürfunktion
- DIN Richtung: DL / DR
- Verwendung: Für einflügelige und zweiflügelige Rohrrahmentüren aus Aluminium und Stahl
- Zertifiziert nach EN 1125: Ja
- Zertifiziert nach EN 12209: Ja
- Zertifiziert nach EN 179: Ja
Feuerschutz geprüft nach EN 1634-1 und DIN 4102-18 Ja
Verwendung Für einflügelige und zweiflügelige Rohrrahmentüren aus Aluminium und Stahl
Zertifiziert nach EN 1125 Ja
Zertifiziert nach EN 12209 Ja
Zertifiziert nach EN 179 Ja
Funktion Innen: Die Falle wird über Drücker oder Stangengriff / Druckstange zurückgezogen, Außen: Auf der Außenseite des Türflügels befindet sich ein feststehender Knopf
| DIN Richtung | DL / DR |
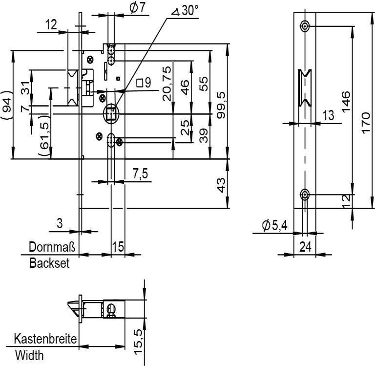
| Dornmaß | 30, 35, 40, 45 mm |
| Falle umlegbar | Ja, Auslieferung in DL |
| Fallenart | Prismafalle |
| Fallenausschluss | 12 mm |
| Flachstulp (Standardausführung) | 24 x 3 mm |
| Hinterdornmaß | 15 mm |
| Hinweis Nussvierkant | Einteilig |
| Hinweis U-Stulp | Alle U-Stulpen werden mit Endkappen geliefert, Bei U-Stulpen ändert sich das Dornmaß um -1 mm |
| Kastenbreite | Dornmaß + 15 mm |
| Kastenhöhe | 99,5 mm |
| Kastenmaterial | Stahl verzinkt |
| Kastentiefe | 15,5 mm |
| Nussdrehwinkel | 30° |
| Nussvierkant | 9 mm |
| Richtungsangabe erforderlich | Nein |
| Stulplängen | 146 mm |
| Stulpmaterial | Edelstahl rostfrei |
| U-Stulp (Standardausführung) | 24 x 6 mm |
| Zylinderlochung | Profilzylinder |
| Serie | Fluchttürserie |
28
Ergebnisse gefundenAnzeigen pro Seite
| Beschreibung | Sprache | Dateigröße | Dateityp | |
|---|---|---|---|---|
| Prospekt Programmübersicht Fluchttürschlösser | de | 16.01 MB | Download | |
| Brochure Product overview emergency exit door locks | en | 16.00 MB | Download | |
| Zertifikat der Leistungsbeständigkeit EN 179 | de | 1.26 MB | Download | |
| Zertifikat der Leistungsbeständigkeit EN 179 | pl | 1.26 MB | Download | |
| Certificate of constancy of performance EN 179 | en | 1.38 MB | Download | |
| Zertifikat der Leistungsbeständigkeit EN 1125 | de | 1.38 MB | Download | |
| Certificate of constancy of performance EN 1125 | en | 1.56 MB | Download | |
| Zertifikat der Leistungsbeständigkeit EN 1125 | pl | 1.38 MB | Download | |
| QM 342 ift Rosenheim-230-7031366-1-5 | de | 456.00 KB | Download | |
| QM 342 ift Rosenheim-230-7031366-1-5 | en | 456.00 KB | Download | |
| QM 342 ift Rosenheim-230-7031366-1-5 | pl | 456.00 KB | Download | |
| Umwelt Produktdeklaration EPD | pl | 690.98 KB | Download | |
| Umwelt Produktdeklaration EPD | de | 690.98 KB | Download | |
| Environmental Product Declaration EPD | en | 576.50 KB | Download | |
| VdS Anerkennung - Einbruchmeldeanlagen der Klasse C | de | 1.30 MB | Download | |
| VdS approval - Class C burglar alarm systems | en | 1.30 MB | Download | |
| VdS Anerkennung - Einbruchmeldeanlagen der Klasse C | pl | 1.30 MB | Download | |
| Allgemeine Gebrauchs-, Installations- und Wartungsanleitung Serie 4000, 6000, 7000 | de | 1.81 MB | Download | |
| Allgemeine Gebrauchs-, Installations- und Wartungsanleitung Serie 4000, 6000, 7000 | pl | 1.81 MB | Download | |
| General operating, installation and maintenance instructions series 4000, 6000, 7000 | en | 1.81 MB | Download | |
| Allgemeine Montageanleitung - CE Kennzeichnungen | de | 426.45 KB | Download | |
| Allgemeine Montageanleitung - CE Kennzeichnungen | pl | 426.45 KB | Download | |
| General installation instruction - CE labellings | en | 426.45 KB | Download | |
| Leistungserklärung S001 BauPVo (EU Nr. 305/2011) EN 179 / EN 1125 | de | 1.06 MB | Download | |
| Declaration of Performance S001 BauPVo (EU Nr. 305/2011) EN 179 / EN 1125 | en | 1.06 MB | Download | |
| Leistungserklärung S001 BauPVo (EU Nr. 305/2011) EN 179 / EN 1125 | pl | 1.06 MB | Download | |
| 467f-produktfoto.png | 102.42 KB | png | Download | |
| 467f-techzeichnung.png | 85.46 KB | png | Download |
| Falle vorstehend (optional) | 3 mm / 5 mm |
| Flachstulp (Sonderausführung) | 22 x 3 mm |
| Nussüberwachung (inkl. 8 m Kabel) | Optional |
| U-Stulp (Sonderausführung) | 22 x 6 mm |



