1435 Einsteck-Schwenkriegelschloss für Rohrrahmentüren
Slider überspringen Einsteck-Schwenkriegelschloss für Rohrrahmentüren
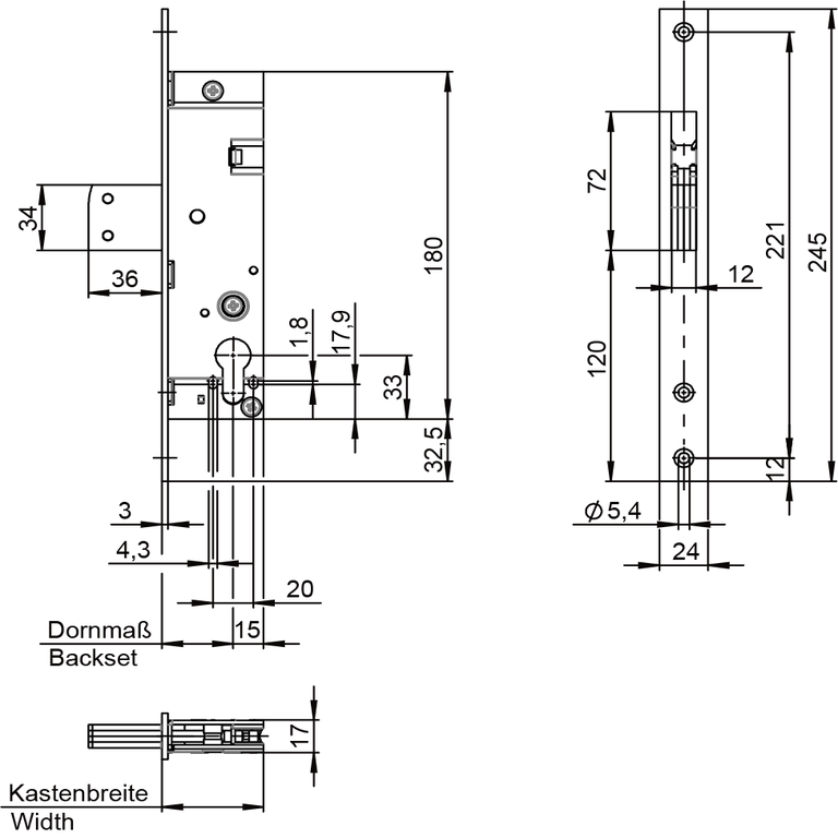
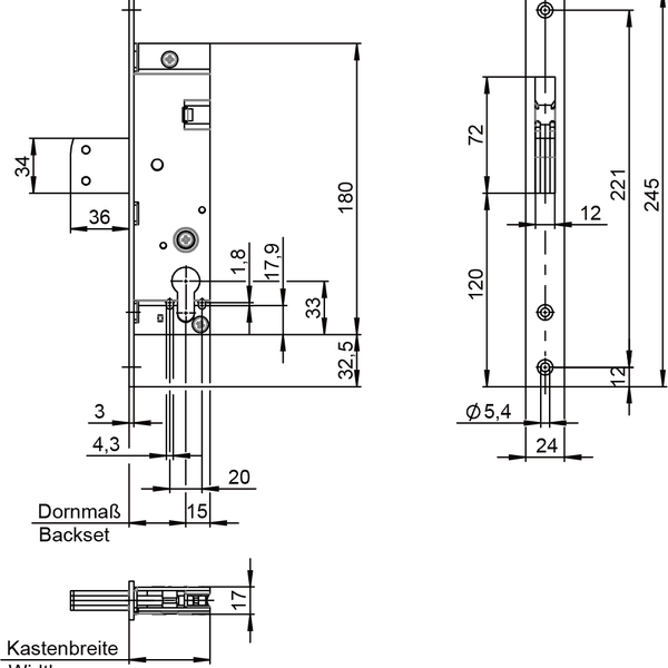
- Riegelausschluss: 36 mm
- Riegeltour: 1-tourig
- Verwendung: Rohrrahmentüren aus Aluminium und Stahl
Anforderung gemäß DIN 18251-2 Klasse 3
SKG** zertifiziert Optional (Artikel 1735)
Verwendung Rohrrahmentüren aus Aluminium und Stahl
| Dornmaß | 25, 30, 35, 40 mm |
| Flachstulp (Standardausführung) | 24 x 3 mm |
| Hinterdornmaß | 15 mm |
| Kastenbreite | Dornmaß + 15 mm |
| Kastenhöhe | 180 mm |
| Kastenmaterial | Stahl verzinkt |
| Kastentiefe | 17 mm |
| Riegelart | Schwenkriegel |
| Riegelausschluss | 36 mm |
| Riegelgegenkraft | 2 kN |
| Riegelquerkraft | 6 kN |
| Riegeltour | 1-tourig |
| Stulplängen | 245 mm |
| Stulpmaterial | Edelstahl rostfrei / Eisen verzinkt |
| Zylinderlochung | Profilzylinder / Schweizer Rundzylinder |
| Serie | 1435 |
9
Ergebnisse gefundenAnzeigen pro Seite
| Beschreibung | Sprache | Dateigröße | Dateityp | |
|---|---|---|---|---|
| Brochure Locks for metal frame doors | en | 5.59 MB | Download | |
| Prospekt Rohrrahmenschlösser | de | 5.59 MB | Download | |
| Prospekt Renovierungsschlösser | de | 6.79 MB | Download | |
| Environmental Product Declaration EPD | en | 576.50 KB | Download | |
| Umwelt Produktdeklaration EPD | pl | 690.98 KB | Download | |
| Umwelt Produktdeklaration EPD | de | 690.98 KB | Download | |
| 1435-produktfoto.png | 93.37 KB | png | Download | |
| 1435-reno-produktfoto.png | 60.42 KB | png | Download | |
| 1435-techzeichnung.png | 69.81 KB | png | Download |
| Renovierungsstulp | Optional (380 mm, ohne Anschraublöcher) |





